WATERFRONT STUNNER -APPROVED BED& BREAKFAST - OFFERING A MAGICAL LIFESTYLE

SOLD

Description

ELEVATED LOCATION WITH SPECTACULAR VIEWS

Has taken over $100,000 let over the past year

As you walk through the front door you will instantly be amazed at the Open Spaces of the Living Areas that leads out to the panoramic long, wide Deck overlooking the Coomera River.

One of the Best Positions on Hope Island at Santa Barbara, this well appointed house with Elevated Views overlooks greenery across to a wide span of water heading towards the sea and up the river to the mountains.

This is a non-strata titled Property avoiding Body Corporate with the Fees, Rules & Regulations.

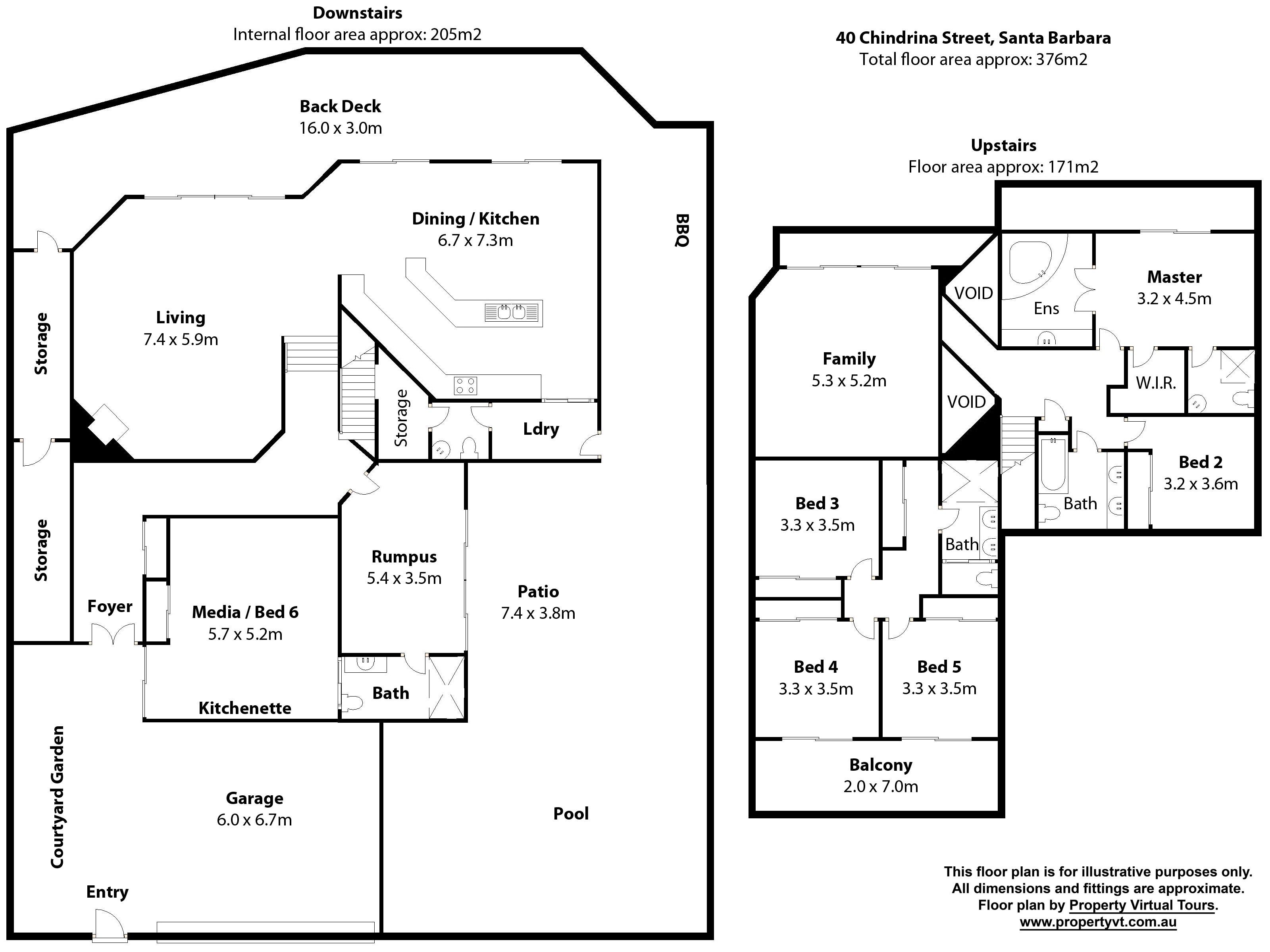
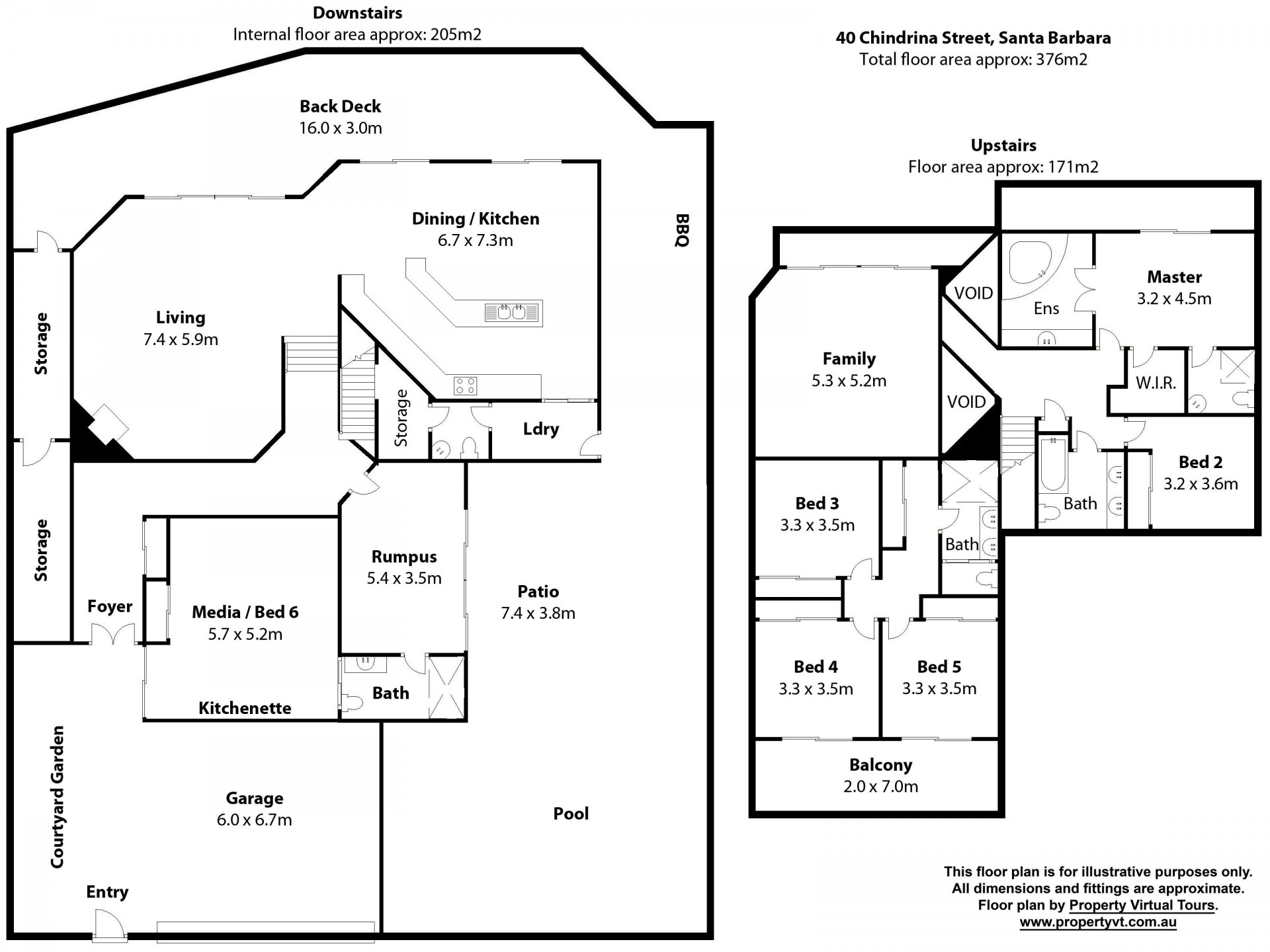
The House features:
* 2 Large Bedrooms, both ensuited
* 3 Standard Bedrooms
* 4 Bathrooms in total
* Rumpus with Billiards Table
* A LIFT across three levels
* An outdoor Living Area with BBQ
* Heated Swimming Pool
* Spacious Layout
* Well Ventilated with Cross Breezes
* Elevated Views
* 10 Metre Pontoon
* Deep Water with Access to the Broadwater
* Solar HWS and the 5 KW solar power unit on the roof

Bedroom 1 emperor size bed (on the mezzanine floor) with ensuite and adjoining room
Bedroom 2 queen bed (ground level) with ensuite plus an adjoining room that can either be a self-contained unit or a large office
Bedroom 3 queen bed (upstairs)
Bedroom 4 queen bed (upstairs)
Bedroom 5 bunk single beds (upstairs)

All furnishings can remain in the property sale

Positioned in Santa Barbara, it is:
a 1 minute walk to parks, boat ramp, coffee shop, boutique shops and an exclusive quality restaurant
3 minutes to Sanctuary Cove and the Golf Course
10 minutes drive to the Gold Coast theme parks
10 minutes to Harbour Town and so close to the Gold Coast beaches

House Details

Overview

  • 1392
  • Sold
  • Hope Island
  • Queensland
  • SOLD
  • 5

  • 4

  • 2

  • 650

Features

Location

40 Chindrina Street, Hope Island, Queensland 4212

Floor Plan

Need the Best Team for Your Property?

We can manage the sale or look after your property with expertise